NSCR-HD-II-HC-250-CNC/UPB

NSCR-HD-II-HC-250-CNC/UPB
or
Call 1-866-609-2672
Description
Clamping Type = Hydraulic
Adaption = UPB-VII
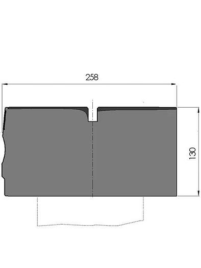
Working height H = 130mm
Width W = 250mm
Max. load = 800ton/m
New Standard Premium CrowningUPB-VII, , Working height=130mm, Width=250mm, provided with UPB-hole pattern which is suitable for the fixing holes according to drawing no.: 0305545, hydraulic clamping (max. 50bar), oil supply ø10mm, left-rear. Crowning: CRM30 motorized (400V, 50Hz, 3Ph) at the right hand side, Tx-alignment, Material=CR-MO, pressure and reference surfaces CNC-Deephardened® (2-4mm / 56-60HRc), weight: 258kg/m, max.load: 800ton/m.Delivery with coverstrip, hardenend guards and scale (front side, metric, "0" at the left). Delivery without hydraulic power pack.
Specifications
| Condition | New |
| Type/length | NSCR-HD-II-HC-CNC-250/UPB VII-4080 |

