NSCR-HD-I-HC-250-CNC/UPB

NSCR-HD-I-HC-250-CNC/UPB
or
Call 1-866-609-2672
Description
Clamping Type = Hydraulic
Adaption = UPB-VII
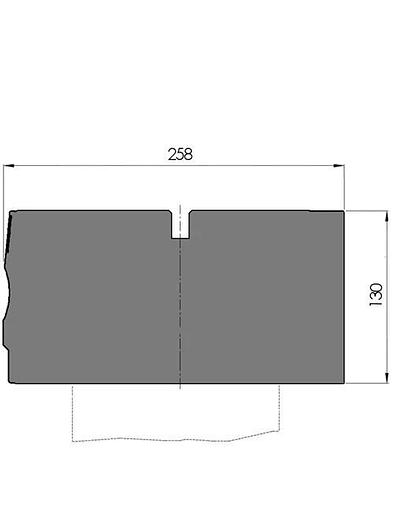
Working height H = 130mm
Width W = 258mm
Max. load = 500ton/m
New Standard Pro CrowningUPB-VII, , Working height=130mm, Width=258mm, provided with UPB-hole pattern which is suitable for the fixing holes according to drawing no.: 0305545, hydraulic clamping (max. 50bar), oil supply ø10mm, left-rear. Crowning: CRM30 motorized (400V, 50Hz, 3Ph) at the right hand side, Tx-alignment, Material=C45 not hardened, weight: 258kg/m, max.load: 500ton/m.Delivery with coverstrip and scale (front side, metric, "0" at the left). Delivery without hydraulic power pack and guards and mounting hardware.
Specifications
| Condition | New |
| Type/length | NSCR-HD-I-HC-CNC-250/UPB VII-4080 |

